Проекты и решенияВнедренные проекты
Рекомендации по построению систем пожарной автоматики в соответствии с СП 484.1311500.2020 изм.1
Автоматизация проектирования BolidCAD
Оборудование Болид в Едином реестре российской радиоэлектронной продукции
Приглашаем принять участие в опросе

Внедренные проекты

Продукцией компании «Болид» оснащено около 1 миллиона объектов.
На карте размещены объекты, информация по которым предоставлена компаниями, зарегистрированными в партнерском разделе сайта.
По определенным причинам Исполнители не могут публиковать полный перечень выполненных проектов.
За более полной информацией можете обратиться к Исполнителю.


Обеспечение ОПС к нормативу на объектах БТС (ЦТП, БТП), ЦТП 14
Обеспечение ОПС к нормативу на объектах БТС (ЦТП, БТП), ЦТП 14

Обеспечение ОПС к нормативу на объектах БТС (ЦТП, БТП) в г. Березники Пермского края под ключ ЦТП-14, по адресу г. Березники, ул. Ив. Дощеникова, 14

Исполнитель:
ООО"СтройСфера"
Обеспечение ОПС к нормативу на объектах БТС (ЦТП, БТП), ЦТП 17
Обеспечение ОПС к нормативу на объектах БТС (ЦТП, БТП), ЦТП 17

Обеспечение ОПС к нормативу на объектах БТС (ЦТП, БТП) в г. Березники Пермского края под ключ ЦТП-17, по адресу г. Березники, ул. Юбилейная, 129

Исполнитель:
ООО"СтройСфера"
Обеспечение ОПС к нормативу на объектах БТС (ЦТП, БТП), ЦТП 18
Обеспечение ОПС к нормативу на объектах БТС (ЦТП, БТП), ЦТП 18

Обеспечение ОПС к нормативу на объектах БТС (ЦТП, БТП) в г. Березники Пермского края под ключ ЦТП-07, по адресу г. Березники, ул. Пятилетки, 115

Исполнитель:
ООО"СтройСфера"
Обеспечение ОПС к нормативу на объектах БТС (ЦТП, БТП), ЦТП 20
Обеспечение ОПС к нормативу на объектах БТС (ЦТП, БТП), ЦТП 20

Обеспечение ОПС к нормативу на объектах БТС (ЦТП, БТП) в г. Березники Пермского края под ключ ЦТП-20, по адресу г. Березники, ул. Строгановская, 11А

Исполнитель:
ООО"СтройСфера"
Обеспечение ОПС к нормативу на объектах БТС (ЦТП, БТП), ЦТП 26
Обеспечение ОПС к нормативу на объектах БТС (ЦТП, БТП), ЦТП 26

Обеспечение ОПС к нормативу на объектах БТС (ЦТП, БТП) в г. Березники Пермского края под ключ ЦТП-26, по адресу г. Березники, ул. Юбилейная, 131

Исполнитель:
ООО"СтройСфера"
ООО "БИТСЕРВИС"
ООО "БИТСЕРВИС"

Разработка Рабочей документации АУГПТ. Монтаж и пусконаладочные работы. Испытания.

Исполнитель:
ООО "ОХРАНА-СЕРВИС"
АО "Тихоокеанское агентство воздушных сообщений"
АО "Тихоокеанское агентство воздушных сообщений"

Разработка рабочей документации автоматической установки газовой системы пожаротушения. Монтажные и пусконаладочные работы. Проведение испытаний.

Исполнитель:
ООО "ОХРАНА-СЕРВИС"
Пожарная сигнализация
Пожарная сигнализация

Торговый Центр Атырау Пожарная сигнализация на основе приборов Болид

Исполнитель:
N-Engineering
Общежитье модульного типа Казпако
Общежитье модульного типа Казпако

Общежитье компании Казпако в месторождении Прорва

Исполнитель:
N-Engineering
Обеспечение ОПС к нормативу на объектах БТС (ЦТП, БТП), ЦТП 27
Обеспечение ОПС к нормативу на объектах БТС (ЦТП, БТП), ЦТП 27

Обеспечение ОПС к нормативу на объектах БТС (ЦТП, БТП) в г. Березники Пермского края под ключ ЦТП-27, по адресу г. Березники, ул. Набережная, 21А

Исполнитель:
ООО"СтройСфера"
Обеспечение ОПС к нормативу на объектах БТС (ЦТП, БТП), ЦТП 28
Обеспечение ОПС к нормативу на объектах БТС (ЦТП, БТП), ЦТП 28

Обеспечение ОПС к нормативу на объектах БТС (ЦТП, БТП) в г. Березники Пермского края под ключ ЦТП-28, по адресу г. Березники, ул. Свердлова, 170А

Исполнитель:
ООО"СтройСфера"
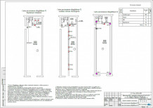
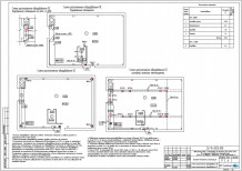
Монтаж АУПС и СОУЭ в п/ст. 7а,70 кор. 530
Монтаж АУПС и СОУЭ в п/ст. 7а,70 кор. 530

ЗАВОДСКИЕ УСЛОВИЯ - ПРОМЫШЛЕННАЯ ПЛОЩАДКА ФИЛИАЛА "АЗОТ" АО "ОХК "УРАЛХИМ" В Г. БЕРЕЗНИКИ ПЕРМСКОГО КРАЯ.

Исполнитель:
ООО"СтройСфера"
Страницы12345678910